GAIAS - Studio
  • Novità
  • Premi
  • Progetti
    • Architetture e mobilità
    • Edifici pubblici
    • Progetti in ambito costiero
    • Progetti urbani
    • Restauro
    • Spazi espositivi
  • Profilo
    • Sebastiano Gaias
    • Giuseppe Gaias
    • Staff
  • Pubblicazioni
  • Conferenze
  • Certificazioni
  • Contatti
Preview
Inquadramento territoriale
Volo d'uccello
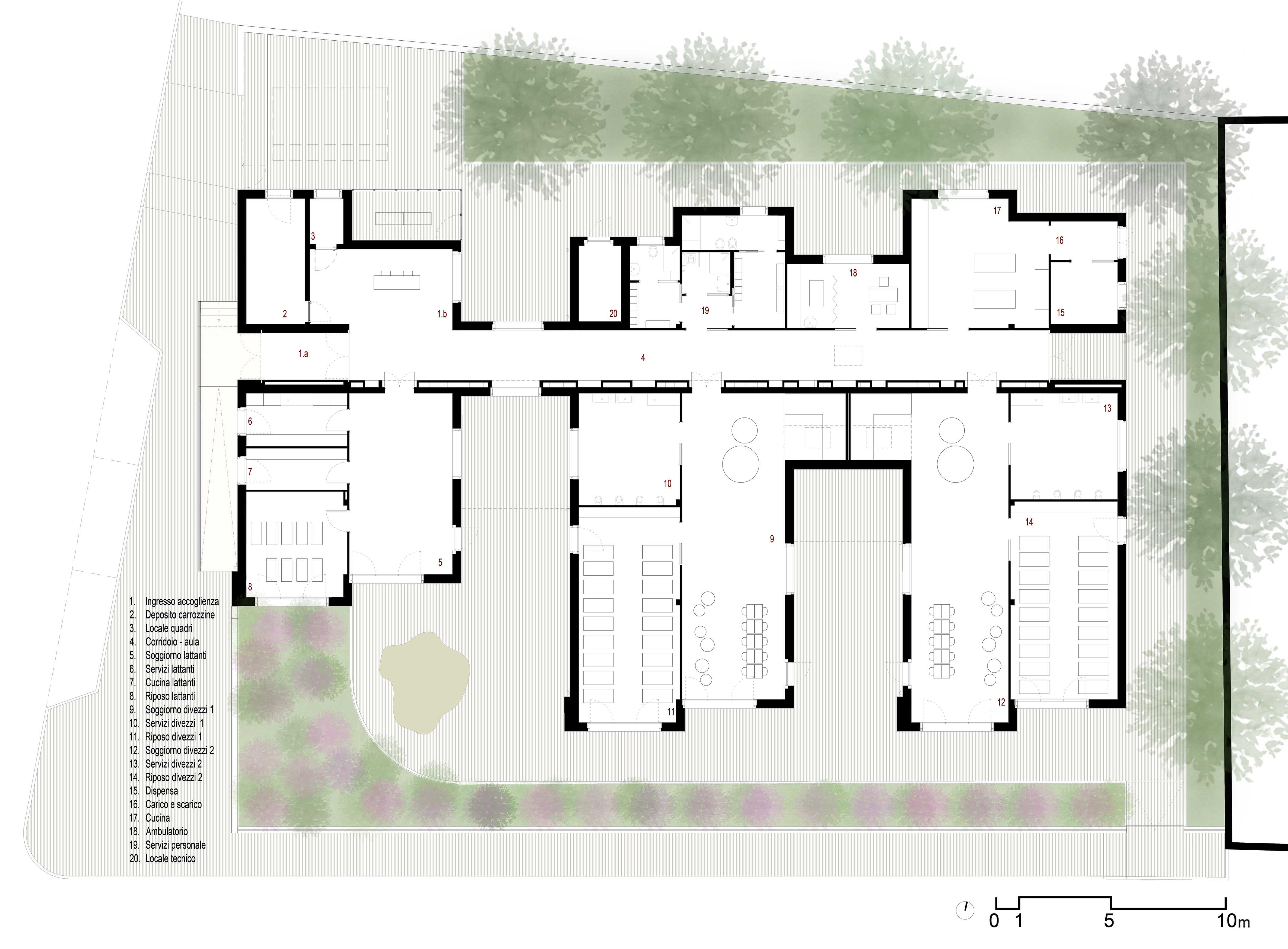
Pianta
Profili
Profili
Particolari costruttivi
Vista esterna
Vista interna

Like this project?

Appreciate

Other projects

View
Current
View
View
View
View
View
View
Previous
Next
Back to portfolio

Olmedo. Nuovo asilo nido

© StudioGaias
Use arrows for navigation