GAIAS - Studio
  • Novità
  • Premi
  • Progetti
    • Architetture e mobilità
    • Edifici pubblici
    • Progetti in ambito costiero
    • Progetti urbani
    • Restauro
    • Spazi espositivi
  • Profilo
    • Sebastiano Gaias
    • Giuseppe Gaias
    • Staff
  • Pubblicazioni
  • Conferenze
  • Certificazioni
  • Contatti
Preview
Schizzo progettuale
Inquadramento territoriale
Schema grafico
Sezione territoriale
Inquadramento urbano
Pianta
Prospetto
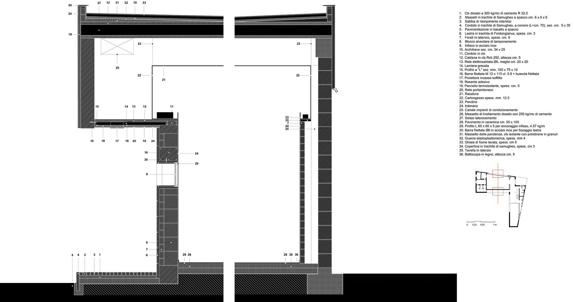
Dettaglio costruttivo
Vista esterna
Vista esterna
Vista esterna
Vista esterna

Like this project?

Appreciate

Other projects

View
View
Current
View
View
View
View
View
Previous
Next
Back to portfolio

Spazi espositivi

Ghilarza. Spazio espositivo per arte contemporanea

© StudioGaias
Use arrows for navigation